60 Threadneedle Street , London EC2
A sensitive retrofit and amenity-led transformation of a landmark City office overlooking the Bank of England.
Overview
John Robertson Architects was appointed to reimagine and upgrade 60 Threadneedle Street, a prominent commercial building in the heart of the City of London. Situated opposite the Royal Exchange, the building occupies a prominent curved frontage at the junction of Old Broad Street and Threadneedle Street within the Bank Conservation Area, a historic setting with sightlines towards St Paul’s Cathedral and St Mary-le-Bow.
Acquired as part of a long-term asset enhancement strategy, the project delivers best-in-class office accommodation through a series of carefully considered interventions, supporting the re-letting of the top floor while future-proofing the building for modern occupiers.
JRA’s interventions focused on enhancing functionality, user experience, and sustainability through a series of targeted upgrades. The building provides 19,832 sq ft of office accommodation across basement, lower ground, ground floor and eight upper levels. The project focused on upgrading key shared spaces and underutilised areas to improve day-to-day experience for occupiers.

Arrival Reimagined
At ground level, the arrival experience has been completely reimagined. The existing sliding doors and entrance cladding were replaced to improve the building’s identity and street presence, while the large reception area was reconfigured to create a more welcoming and versatile space for tenants and visitors.
The reception has evolved from an oversized static lobby into a multi-functional arrival space that balances hospitality-led design and modern working patterns. A relocated reception desk and integrated speed gates rationalise circulation, while a self-service coffee point and lounge seating allow the space to operate as both a welcome area and an extension of the workplace.


Workplace Enhancements
A refined interior scheme introduces a calm, contemporary palette, plush furnishings, and a carefully layered ambient and decorative lighting strategy, elevating shared spaces to contemporary hospitality standards while respecting the building’s heritage.
The design responds to the black façade and the oak timber panelling within the two principal atrium spaces. The existing granite floor in the reception area has been retained and revitalised through a specialist cleaning process, enhancing its appearance while preserving the original material.
A new material palette was carefully selected to create a cohesive transition than the existing finishes. Terrazzo at the reception desk and the extensive oak panelling produce a three-dimensional surface language that echoes the rhythm and depth of the existing façade design.




Office Space
The office floor has been delivered as a Cat-A fit-out, complemented by a comprehensive upgrade of the toilet facilities to align with the new material palette and lighting scheme. The introduction of a raft ceiling design intentionally leaves selected services exposed, maximising floor-to-ceiling height and enhancing the distribution of natural daylight throughout the space.



A New Roofscape
At roof level, JRA delivered a comprehensive refurbishment including new access doors, balustrades, and high-quality finishes. A previously overlooked terrace has become a biodiverse garden that enhances occupier experience, while connecting users to the spectacular city views.
Designed in collaboration with Giverny Flower, the new landscaped terrace incorporates planting, seating areas and relocates part of the sedum roof to Level 9, enriching the building’s biodiversity. The carefully curated planting scheme combines evergreen shrubs, trees, perennials, and ornamental grasses to attract pollinators such as butterflies and bees, while supporting ecological balance. A bespoke, low-impact lighting scheme highlights the garden’s features without resorting to generic floodlighting, creating a calm and atmospheric evening environment.

Active Travel & Workplace Wellbeing
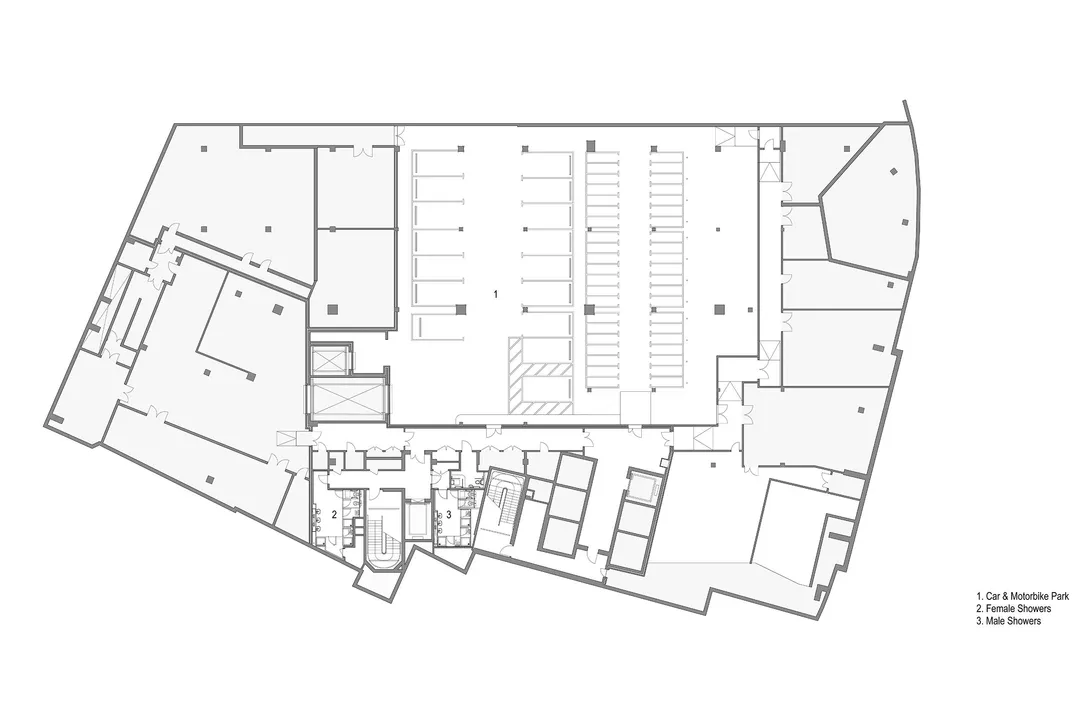
Underutilised areas have been strategically repurposed to deliver measurable operational value. At basement level, former parking spaces have been refurbished into modern end-of-journey facilities, including well-appointed showers, changing rooms with lockers and ironing stations, and extensive cycle storage, encouraging active travel, and supporting workplace wellbeing.


Sustainable Interventions
The transformation of 60 Threadneedle demonstrates how intelligent, amenity-led retrofit can reposition a landmark office building for the next generation of occupiers.
Instead of pursuing an unnecessary overhaul, JRA’s interventions are deliberately targeted and restrained, enhancing the building without compromising its original sensitive historic context and architectural intent.
The material selection for the scheme was informed by the fabric of the existing building in terms of look, feel, durability, and quality. By upgrading the entrance, reception, and office spaces to premium CAT A standards, enhancing cyclist and wellness facilities, and introducing a landscaped terrace, the scheme delivers contemporary functionality and improved occupier experience without the environmental and social costs of new-build development.
JRA’s approach not only safeguards the character of a landmark City building but also supports ESG objectives, enhances long-term asset value, and reinforces the resilience and relevance of the property in a competitive office market. The completed scheme delivers a workplace that operates more intelligently, offering a best-in-class office setting in a prime London location.




















