Helix HQ, London WC2
A sophisticated HQ fit out that maximised reuse at the base of a historic warehouse.
Headquarters
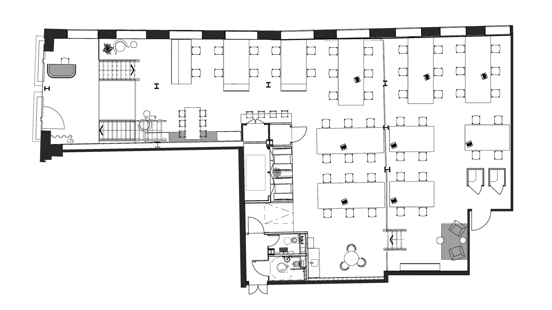
JRA designed the CAT A and B fit out of Helix Property Management’s new headquarters. The team worked closely with the client to reflect their company culture and incorporate aspects of the wider heritage site, Grainhouse, in which it is set. Using careful space planning, the team created a new entrance, reception and lobby, workspace for Helix’s 70 strong team, plus meeting rooms and amenities for staff, including a kitchenette and breakout area. The aesthetic is centred on a palette of neutral colours and clean lines to create a sophisticated hospitality feel. The team reused a large proportion of Helix’s existing furniture, reinvigorating it through additions and placement in the new space. The designs offer coherence with the headquarters of Helix’s parent company, Hines, who are located on the upper floors.
Grainhouse is a former seed merchants’ warehouse located on Arne Street and Dryden Street in the Covent Garden Conservation Area. It is comprised of a newly unified five building complex that provides offices, retail and restaurants. Helix HQ occupies the ground and lower ground floor of the development at the corner of Arne Street and Shelton Street.




Seed Merchants
Grainhouse has a long and rich history. The first record of the site dates from 1861 for a church and foundry showroom, and it was later established as a seed merchants’ warehouse from which the building takes its name. The buildings are set in the Covent Garden Conservation Area and feature a striking warehouse aesthetic with prominent crittall windows, London brickwork and a large loading bay. The five buildings had been intended for redevelopment for over ten years before being turned into a unified complex providing office space, retail and restaurants, which retains the original heritage features.
The ground and lower ground were the final levels for renovation and were leased by Hines, whose headquarters are housed in the upper levels, for their subsidiary, Helix Property Management.

Legacy Conditions
The historic legacy as a grain house required careful design to maximise the building’s unusual ceiling heights. This challenge was combined with prior renovations to the upper levels that left a legacy of ‘existing conditions’ at ground and lower ground, such as pipe work and services for the higher floors, throughout the space.
Structural Interventions
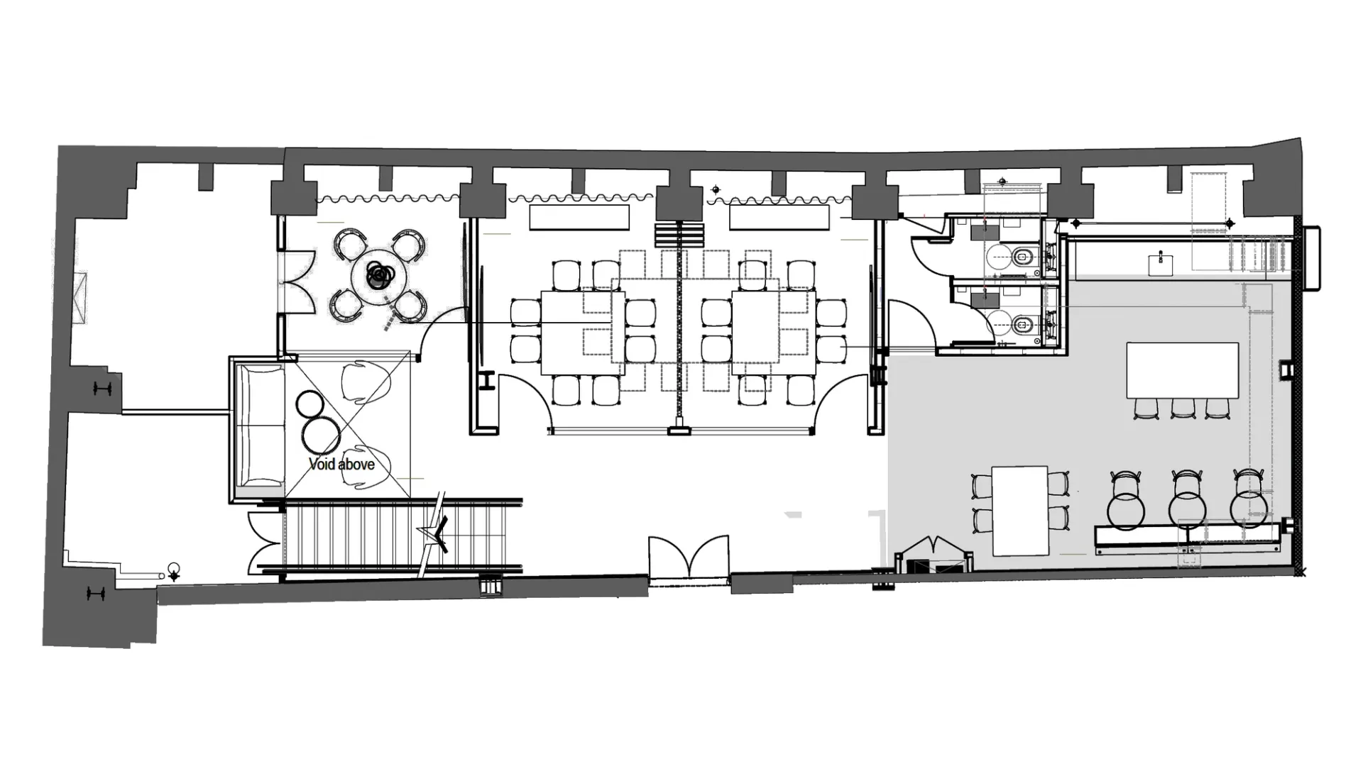
JRA’s interventions adapted to the building and its existing conditions. For example, incorporating full height doors at street level created a match with the original crittall windows to flood the new offices with light and enhance street presence. The floor heights were negotiated through a semi-exposed ceiling design and the spaces were softened through the material palette and acoustic additions. JRA also incorporated two new staircases to join the floors, adjusting their locations to maximise usable area at all levels, including creating a third meeting room. The design for the balustrade provides coherence with features of the upper floors occupied by the parent company and echo the space’s former purpose via ‘grain’ shaped cutouts.



Strategic Planning
Helix HQ is the smallest fit out in JRA’s portfolio but commanded just as much attention from the team. Strategic space planning allowed for a distinctive reception and lobby, workspace for 70 staff, extensive locker space, three meeting rooms, a kitchenette and breakout area and a WC at each level.


Sophisticated Aesthetic
Helix HQ is influenced by hospitality style spaces, with a sophisticated aesthetic of clean lines and neutral colours. The designs have been softened using timber and natural planting throughout. At ground level, JRA focused on maximising a feeling of light and space in the work zones. This was differentiated at lower ground level, which is distinctively warmer. The team specified every aspect of the fit out down to sockets and waste traps to ensure a consistency across the design.
Soft Landings
JRA worked closely with the client throughout, providing precedents and CGIs to convey their vision and collaboratively refine the designs to reflect the company’s culture. The team continues to work with the client as they settle into the space, taking a soft landings approach to the fit out which allows for adaptations and adjustments as needed. The approach speaks to the interior team’s ethos of maintaining strong relationships with clients and continually reflecting on each project to devise actionable ‘lessons learned.’

Sustainability
Sustainable features of the project include the extensive reuse of furniture from the client’s previous office, including all desk chairs and artwork. The team introduced complementary pieces and reinvigorated existing items through placement in the new space. There is also a range of biophilia across the office, which are serviced to keep all planting in optimum health.












