The Colyer, London EC4
A sympathetic conversion from office to residential that echoes the spirit of jazz.
New Life
The Colyer is a mid nineteenth century building located at 10-11 Great Newport Street in the Covent Garden conservation area. Formerly Studio 51, the building was a seminal jazz club for artists including Ken Colyer. JRA was appointed by Aviva Investors to carry out a conversion from its subsequent use as offices to residential accommodation, whilst taking the history of Studio 51 and the area into account.
The exterior has been sympathetically renovated by keeping the original façade and incorporating a restaurant and a concierge reception at ground floor. The design has created two additional floors and provides new outside space at every level. Internally the building comprises 14 apartments ranging from studio to three bedrooms, including a penthouse offering panoramic views across London. The interior design has been carried out by Johnson Naylor.
JRA implemented sustainability strategies that helped the project achieve BREEAM Excellent rating.



Studio 51
Great Newport Street sits at the heart of Covent Garden in the West End and has a rich history. It was notable as a residential area for gentry and prominent artists from 1600 onwards. The current iteration of the building dates back to the 19th century, though it was extended in 1986. While sympathetic to the early history of the area, JRA primarily drew on the site’s use as ‘Studio 51,’ a music club owned by jazz musician Ken Colyer in the 1950s and 60s that hosted artists including Eric Clapton and The Rolling Stones during its lifetime. JRA signified the link from the outset with the buildings new name: The Colyer.

Continuity
JRA kept the original front façade, maintaining continuity with the surrounding buildings in the conservation area. We created a new elevation at ground level to provide a sophisticated entrance and restaurant space on Great Newport Street. The exterior dark grey colour scheme creates a contrast to the red brick building and balances the new double height mansard roof.
To the rear, JRA designed a new, simplified façade with updated glazing to improve daylight to the apartments.



Bright Idea
The courtyard has been tiled with glass blocks allowing natural light to enter the basement despite the roof of the lower ground level sitting within the centre of the site. JRA also incorporated a sculptural wooden screen to balance privacy and light.


Penthouse Panorama
The key challenge was presented by the penthouse apartment spanning the entire top floor of the building where JRA was keen to produce a high end, light filled space in keeping with the market offering. Using floor to ceiling glazing to provide panoramic views of London had to be balanced with the conservation area, which specifies the need for a traditional mansard roof. To reconcile the wishes of the planners with those of the market, JRA created an innovative take on the mansard roof with integrated full height glazing set behind 32 vertical brise soleil. Clad in the same polyester powder coated aluminium as the rest of the roof, the louvres are aligned with the joints in the cladding, effectively concealing the glazing to give a solid appearance at street level. This approach not only ensures that the restored masonry façade takes centre stage, but also provides residents with panoramic views across the London skyline.




Internal Arrangements
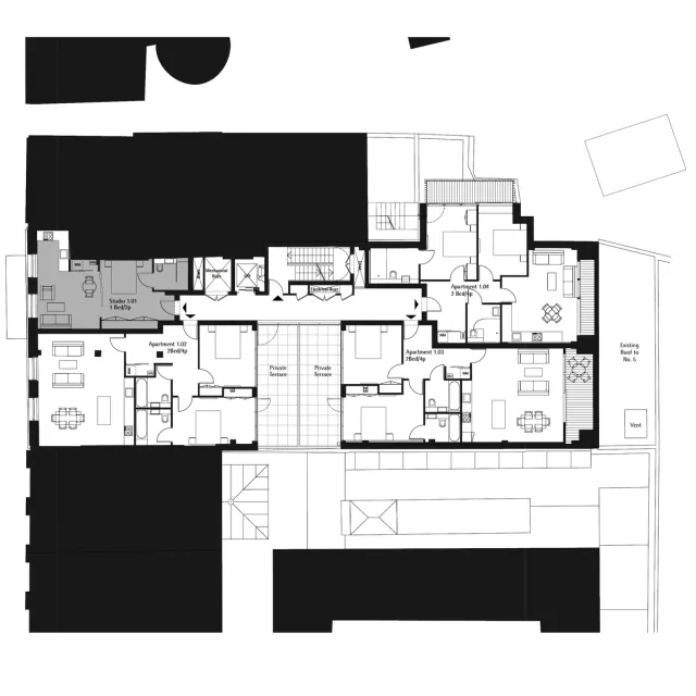
JRA made a series of internal alterations to suit the new mix of uses as part of the conversion from offices to residential apartments. These include a new stair, lift core and service risers, with a suite of shared back of house facilities at basement level, including a cycle store, refuse and recycling store, and plant rooms. The residential accommodation is located from the first to the fifth floor. It is centred around an existing external light-well where JRA has created a sculptural louvred screen to maximise daylight to the residences while maintaining privacy.
Careful planning and coordination enabled JRA to carry out the design and construction in the constrained West End location.








Modern Classic
As part of the base build, JRA created a modern classic resident’s reception in marble, brass and title, following the design vocabulary across the lobbies and apartments using dark wood herringbone floors inlaid with brass detailing.




Sustainability
During the design process, JRA improved the longevity of the development through environmental strategies. The building achieved a BREEAM Excellent rating through a number of initiatives, for example, a sedum roof, low flow water fittings and shallow baths. The thermal performance of the envelope has been significantly improved and solar panels have been fitted as a long-term investment and additional benefit for residents.


