The Northcliffe, London EC4
JRA’s repositioning of The Northcliffe, the Grade II listed former headquarters and printworks of the Daily Mail newspaper.
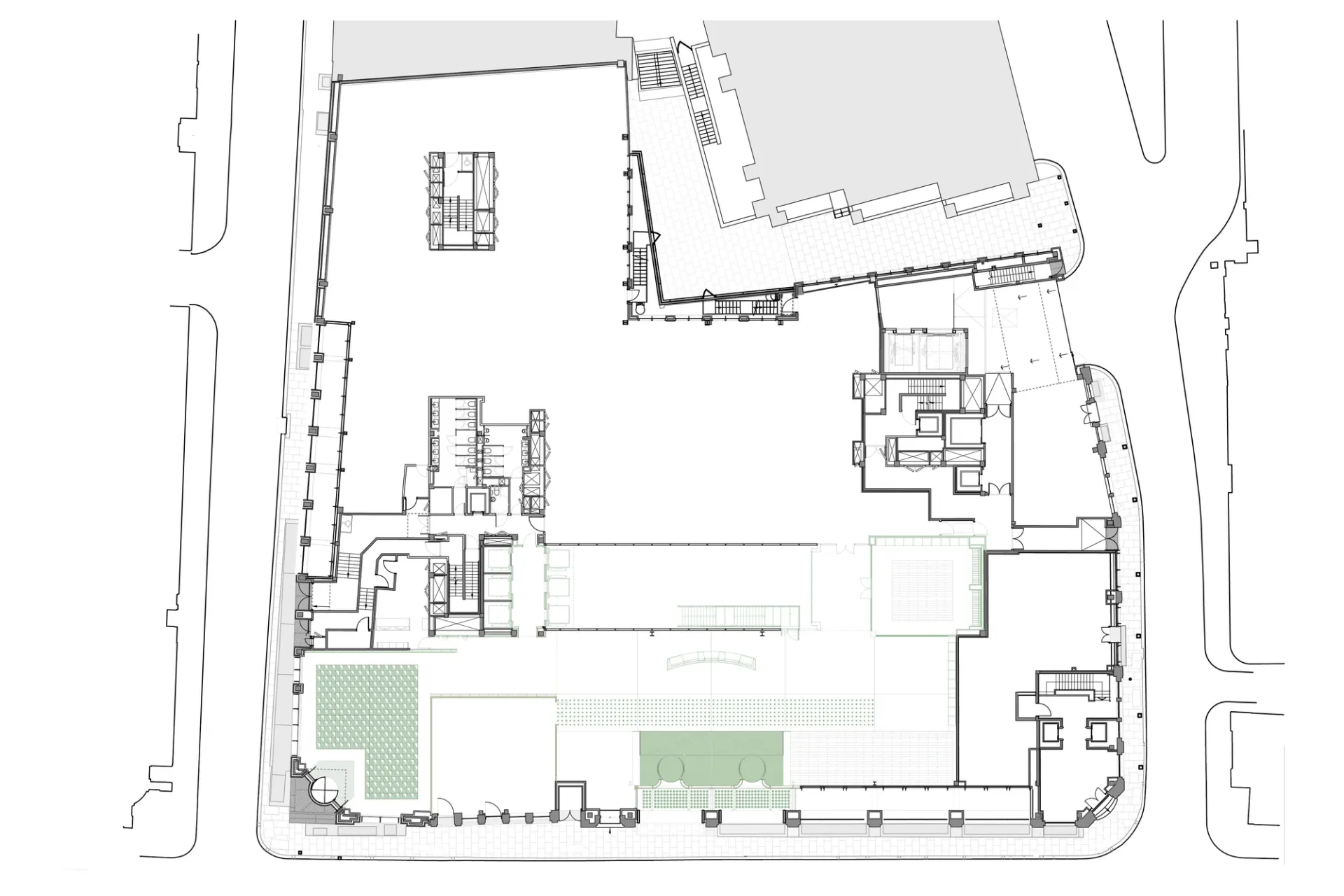
Newspaper Epicentre
The Northcliffe is a historically sensitive reimagining of the former headquarters and print works of the Daily Mail newspaper in Tudor Street, close to Fleet Street, in the City of London.
JRA’s redesign incorporates the Grade II Listed façade of the original 1920s building, and extends the building across two floors to offer 17,344 m2 of office space centred around a spectacular reimagined atrium. The Northcliffe is WELL Ready and offers extensive amenities, including three new landscaped roof terraces, lounge spaces, a library area, a quiet room, end-of-trip facilities, a café and a retail unit, all unified by references to the building’s post-industrial heritage.
JRA’s design achieved BREEAM ‘Outstanding,’ which less than 1% of refurbished buildings have achieved to date, and is certified EPC B. The project saved 53% of global warming potential versus demolition by retaining the superstructure and building fabric, and exceeds RIBA’s 2030 embodied energy emissions targets. The practice’s sustainable approach has been informed by a Life Cycle Assessment (LCA) commissioned by the Client.



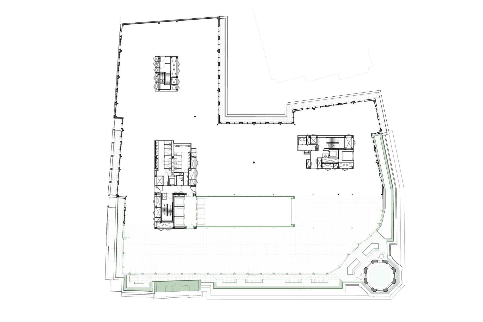
Massing
The extensions at the upper two levels step back from the Daily Mail façade, allowing for three new south facing ‘green’ roof terraces to be formed at levels 5, 6 and 7. These new ‘green’ terraces link with the existing terrace on Bouverie Street and Whitefriars Street and are wide enough to provide usable external landscaped terraces for occupiers.

Activating the Ground Floor
The main entrance of the building has been relocated, placed centrally on Tudor Street and within the original Daily Mail façade. It marks a new era for the building and draws users and visitors alike into the heart of the revitalised, hospitality style reception. The interior design is inspired by the rich history of the 1920s, focusing on strong geometries, bold use of colour and pattern, and high quality, crafted finishes.




Atrium
The atrium is the central feature of the building, around which the office floors and key circulation routes are organised. It provides natural daylighting for the office spaces and visual interest at the heart of the workplace. It is an integral part of the user and visitor experience, with a feature stair located at ground floor level connecting the lower ground floor to the main entrance hall.


Listed Façade
The Grade II listed façade was designed by Ellis and Clarke in 1925, with the addition of the recessed façade and turret at level four in 1929. The building was constructed using a cast steel frame with the external elements encased in concrete to support the walls and ties for the precast cladding of ‘Atlas White’ Portland cement stone and the fashionable neo-Egyptian style decorative features such as the fluted coved cornice above the third floor. It made liberal use of Crittall’s minimalist W20 section galvanised steel windows with copper-lite glazing, giving the first and second floors an almost fully glazed appearance.



External Terraces
Levels five, six and seven feature landscaped terraces that utilised 8,163 plants made up of over 55 species to create a country garden experience, enclosed by glass balustrading and perimeter planting. The terraces have been designed to provide a variety of spaces in which to work, relax and ‘to do more’. The terraces at level five and six have been demised to the adjacent office tenant and the level seven terrace is an amenity for the whole building.






Sustainable by Design
Responding to the climate crisis was a priority at The Northcliffe. A Life Cycle Assessment was conducted to ensure the client’s sustainability goals were met. The LCA confirmed the benefit of retaining the superstructure and building fabric, saving 53% of global warming potential versus demolition. The building possesses 40m2 of solar panels, 910m2 of landscaped terraces with biodiverse planting, 345 cycle spaces and extensive premium end of trip facilities. In use, all waste is diverted from landfill, the building is powered by 100% renewable electric energy and has greater than 55% more efficient water consumption. In addition to BREEAM ‘Outstanding,’ the building is certified EPC B and the design exceeds RIBA 2030 targets for sustainability.

Awards
BREEAM Award, The Northcliffe, Winner
Society of Façade Engineering (SFE) - Sustainable Project UK, The Northcliffe, Winner
Finishes and Interiors Sector (FIS) Awards - Ceiling Category, The Northcliffe, Winner
BALI Award for Roof Garden, The Northcliffe, Winner
BCO Awards - Recycled Workplace Category, The Northcliffe, Finalist
AJ Retrofit and Reuse Awards - Positive Addition (£5 million and Over), The Northcliffe, Finalist
City Building of the Year, The Northcliffe, Finalist
AIA International Design Awards, The Northcliffe, Winner Commendation for Architecture
NLA Awards - Retrofit Category, The Northcliffe, Finalist


















